
各画像クリックで拡大
■空家にて引き渡しとなります
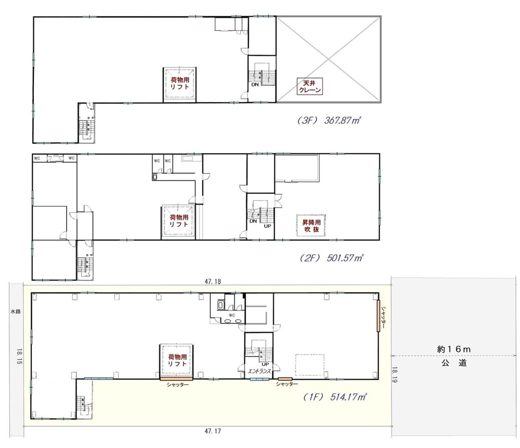
■16m公道に面し、大型車両の搬出入が可能です
■キュービクル、荷物用リフト、天井クレーン等設備あり
※利回りは、単純利回り(想定年間賃料総額÷購入価格)で登記費用、固定資産税等の必要経費等及び設計費用等は一切含まれておりません。
※賃料収入(または想定賃料収入)や利回りは将来にわたり確実に得られることを保証するものではございません。
※「満室時年収」とは、現時点で想定もしくは設定されている家賃収入を1年間得られた場合の収入であり、公租公課その他当該物件を維持するために必要な費用の控除前のものです。
※「満室時年収」は、現在の賃料収入(または想定賃料収入)を元に計算されているため、将来にわたって確実に得られることを保証するものではありません。
物件概要
| 路線最寄り駅 |
小田急小田原線 本厚木駅
徒歩18分 |
| その他交通手段 |
JR相模線「社家」駅徒歩30分 |
| 所在地 |
神奈川県 厚木市 岡田 2丁目 |
| 価格(税込) |
30,000万円 |
ローンシミュレーション
|
| 満室時利回り※ |
- |
満室時年収※ |
- |
| 建物面積 |
1383.61m2 |
土地面積 |
864.21m2 |
| 土地権利 |
所有権 |
築年月 |
1985年1月 |
| 建物構造 |
鉄骨 |
地上 / 地下 |
地上 3階
|
| 現況 |
居住中 |
総戸数 |
1 /空戸数 0 |
| 引渡し |
相談 |
方角 |
|
| 建ペイ率 |
60% |
容積率 |
200% |
駐車場 |
有 |
用途地域 |
準工業 |
| 防火指定 |
|
物件管理NO |
34161 |
| セットバック |
|
私道面積 |
|
| 条件等 |
|
地代 |
|
| 借地期間 |
|
建築確認番号 |
|
| 国土法届出 |
不要 |
取引形態 |
媒介 |
| 接道状況 |
東 幅員:16m 公道 |
| 備考 |
|
周辺マップ
厚木市岡田2丁目周辺の地図です。物件の所在地を特定するものではありません。