中野区 上高田2丁目「中野」

東京都 中野区 上高田 2丁目
マンション(一棟)
利回り 4%
価格(税込) 41,800万円
上高田2丁目「中野」
上高田2丁目「中野」
上高田2丁目「中野」
上高田2丁目「中野」
上高田2丁目「中野」
上高田2丁目「中野」
拡大各画像クリックで拡大

■東南角敷地につき、日照・通風良好です ■2019年10月外壁塗装工事施工済みでコンディション良好 ■4路線2駅が利用可能で、交通の利便性良好です

  • 価格(税込)
    41,800万円
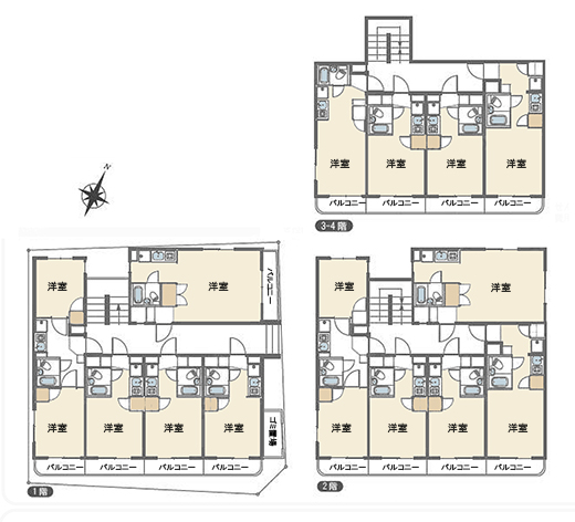
  • 間取り
  • 満室時利回り(※)
    4%
  • 満室時年収(※)
    1675.32万円
※利回りは、単純利回り(想定年間賃料総額÷購入価格)で登記費用、固定資産税等の必要経費等及び設計費用等は一切含まれておりません。
※賃料収入(または想定賃料収入)や利回りは将来にわたり確実に得られることを保証するものではございません。
※「満室時年収」とは、現時点で想定もしくは設定されている家賃収入を1年間得られた場合の収入であり、公租公課その他当該物件を維持するために必要な費用の控除前のものです。
※「満室時年収」は、現在の賃料収入(または想定賃料収入)を元に計算されているため、将来にわたって確実に得られることを保証するものではありません。

物件概要

路線最寄り駅 JR総武・中央緩行線 中野駅  徒歩10分
その他交通手段 東京メトロ東西線「中野」駅徒歩10分・ 西武新宿線「新井薬師前」駅徒歩7分 
所在地 東京都 中野区 上高田 2丁目
価格(税込) 41,800万円 ローンシミュレーション
満室時利回り 4%  満室時年収 1675.32万円 
建物面積 380.71m2  土地面積 167.85m2 
土地権利 所有権  築年月 1990年04月 
建物構造 RC(鉄筋コンクリート)  地上 / 地下 地上 4階     
現況 賃貸中  総戸数 18 /空戸数 0
引渡し 相談   方角  
建ペイ率 80%  容積率 264% 
駐車場 無し  用途地域  
防火指定 準防火地域  物件管理NO 34062
セットバック   私道面積  
条件等 オーナーチェンジ  地代  
借地期間   建築確認番号  
国土法届出 不要  取引形態 媒介 
接道状況 南 幅員:約4.3m  公道 
備考 他接道:東側約4.4m公道 

周辺マップ

 
中野区上高田2丁目周辺の地図です。物件の所在地を特定するものではありません。
  • 不動産売買物件
  • My住まい
  • 下北沢にスムゾー
  • facebook
  • 採用情報
  • 健ハウジング

ページトップへ