
各画像クリックで拡大
■現空につき、自己使用にも、賃貸収益用途にも多目的利用が可能です
■世田谷通りに面し、人や車両も多く通行しています
■複数路線の利用も可能で、通勤・通学ともに利便性良好です
※利回りは、単純利回り(想定年間賃料総額÷購入価格)で登記費用、固定資産税等の必要経費等及び設計費用等は一切含まれておりません。
※賃料収入(または想定賃料収入)や利回りは将来にわたり確実に得られることを保証するものではございません。
※「満室時年収」とは、現時点で想定もしくは設定されている家賃収入を1年間得られた場合の収入であり、公租公課その他当該物件を維持するために必要な費用の控除前のものです。
※「満室時年収」は、現在の賃料収入(または想定賃料収入)を元に計算されているため、将来にわたって確実に得られることを保証するものではありません。
物件概要
| 路線最寄り駅 |
東急世田谷線 上町駅
徒歩8分 |
| その他交通手段 |
東急田園都市線「桜新町」駅徒歩16分・
東急世田谷線「世田谷」駅徒歩13分 |
| 所在地 |
東京都 世田谷区 世田谷 2丁目 |
| 価格(税込) |
9,800万円 |
ローンシミュレーション
|
| 満室時利回り※ |
- |
満室時年収※ |
- |
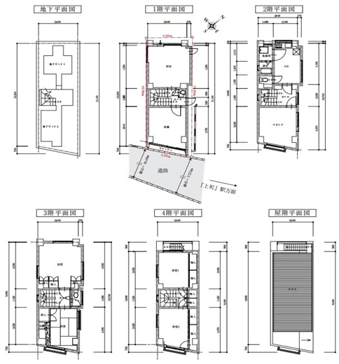
| 建物面積 |
152.77m2 |
土地面積 |
47.3m2 |
| 土地権利 |
所有権 |
築年月 |
1980年11月 |
| 建物構造 |
RC(鉄筋コンクリート) |
地上 / 地下 |
地上 4階
|
| 現況 |
空家 |
総戸数 |
1 /空戸数 0 |
| 引渡し |
相談 |
方角 |
|
| 建ペイ率 |
80% |
容積率 |
300% |
駐車場 |
無し |
用途地域 |
近隣商業 |
| 防火指定 |
|
物件管理NO |
33885 |
| セットバック |
|
私道面積 |
|
| 条件等 |
|
地代 |
|
| 借地期間 |
|
建築確認番号 |
|
| 国土法届出 |
不要 |
取引形態 |
媒介 |
| 接道状況 |
南東 幅員:16m 公道 |
| 備考 |
|
周辺マップ
世田谷区世田谷2丁目周辺の地図です。物件の所在地を特定するものではありません。